Appartement
Doe een bod vanaf € 200.000

Bist 56, 2610 Wilrijk
    • delen

Omschrijving Ref.: 7298276

Deels te renoveren, centr. gel. app (V5-93 m²) met 2 slpks.


Plannen, foto's en virtual bezoek (copy/paste browser):
360tool.immotools.be/

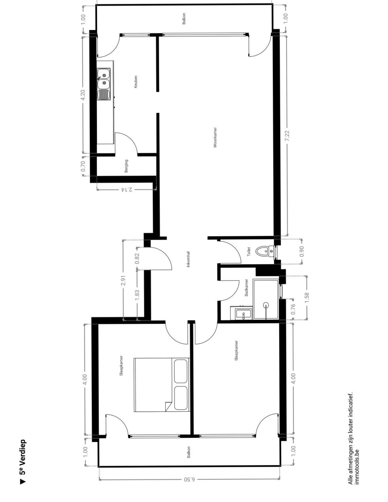
Indeling: inkomhal, zeer ruime woon- en zitkamer, keuken, 2 ruime slaapkamers, nieuwe badkamer (douche, lavabo), berging, apart toilet, terras voor- en achteraan

Verder:
- houten ramen
- er is een externe syndicus
- er is een lift aanwezig
- géén renovatieverplichting
- electriciteit kan conform gemaakt worden voor 5.353 € (incl. BTW)
- alle noodzakelijke documenten voor de verkoop zijn beschikbaar en liggen ter inzage bij het bezoeken van de woning
- de opgegeven prijs is een richtprijs (bod onder voorbehoud van goedkeuring door de eigenaar).


Uw contact

Glenn Anné 0477 19 17 40
contact

Details van het pand

Financieel

Prijs
Doe een bod vanaf € 200.000,00
Beschikbaarheid
Vanaf akte
Kadastraal inkomen
€ 840,00

Ligging

Buurt
Centraal, stadskern
School nabij
Ja
Winkels nabij
Ja
Openbaar vervoer nabij
Ja

Gebouw

Bewoonbare oppervlakte
93,00 m²
Bouwjaar
1972
Staat
Deels te renoveren
Verdiep
5

Parkeermogelijkheden

Garage
0
Parkings buiten
0
Parkings binnen
0

Indeling

Keuken
Ja
Badkamer type
Douche

Comfort

Lift
Ja

Energie

EPC
301 kWh/m²/jaar
Dubbele beglazing
Ja
Ramen
Hout
Elektriciteitskeuring
Ja, niet conform
Type verwarming
Gas cv
Verwarming
Collectief

Technieken

Elektriciteit
Ja
Gas
Ja
Water
Ja

Stedenbouw

Bestemming
Niet meegedeeld
Bouwvergunning
Niet meegedeeld
Verkavelingsvergunning
Niet meegedeeld
Voorkooprecht
Nee
Asbestinventarisattest
Ja
Asbestinventarisattest opmaak datum
18/07/2025
Asbestinventarisattest informatie
Asbestveilig
Dagvaarding
Nee - geen rechterlijke herstelmaatregel of bestuurlijke maatregel opgelegd
G-score
A
P-score
A
Vonnissen
Nee
Kadaster sectie
A
Kadaster nummer
0252HP0028
Servitude
Ja

Meer info over deze eigendom

Bedankt voor je bericht, we contacteren je zo spoedig mogelijk.
Er was een probleem bij het versturen van het formulier, gelieve opnieuw te proberen.
U moet de algemene voorwaarden aanvaarden om dit bericht te kunnen verzenden
(*) Gelieve de verplichte velden in te vullen.