Huis
€ 355.000

Stationsstraat 112, 2845 Niel
    • delen

Omschrijving Ref.: 7598089

Deels te renoveren rijwoning met 3 slpk, tuin en garage


Plannen, foto's en virtual bezoek:
360tool.immotools.be/

Omschrijving:
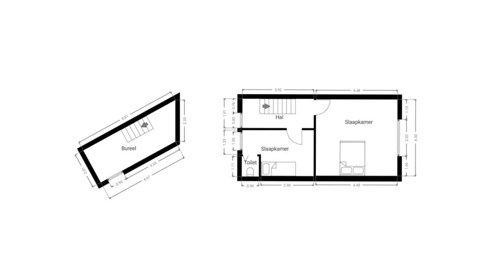
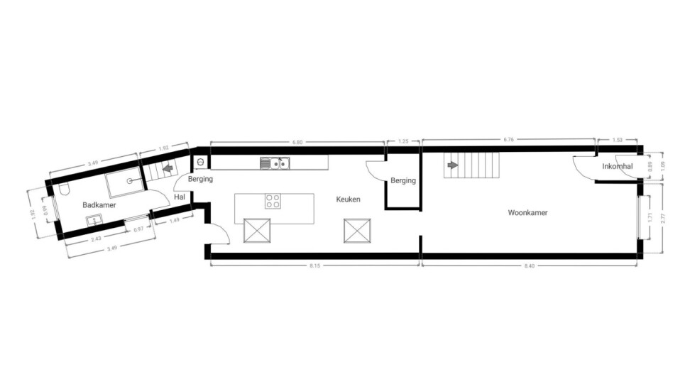
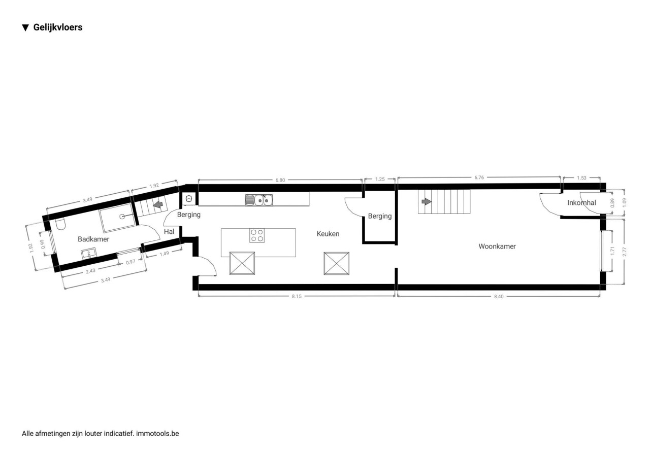
- gelijkvloers: inkomhal, woonkamer, zitkamer, volledig uitgeruste keuken (kookplaat, vaatwasser, spoelbak, koelkast, oven, microgolfoven, koffiemachine), voorraadkamer, badkamer (inloopdouche, lavabo, toilet),
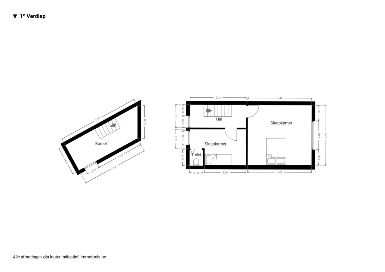
- 1e verdieping: nachthal, 2 slaapkamers, toilet
- 2e verdieping: onafgewerkte zolder met mogelijkheid tot inrichten 1 extra slaapkamer

Verder:
- PVC ramen dubbele hoogrendementsbeglazing
- juni '25 dakrenovatie
- warmtepomp
- 12 zonnepanelen + thuisbatterij
- badkamer + achterbouw gerenoveerd in '19
- terras in '22 aangelegd
- Z-tuin
- géén renovatieverplichting
- electriciteit is conform
- alle noodzakelijke documenten voor de verkoop zijn beschikbaar en liggen ter inzage bij het bezoeken van de woning


Uw contact

Glenn Anné 0477 19 17 40
contact

Details van het pand

Financieel

Prijs
€ 355.000,00
Onder BTW stelsel
Nee
Beschikbaarheid
Vanaf akte
Kadastraal inkomen
€ 612,00

Ligging

Buurt
Centraal, rustig
School nabij
Ja
Winkels nabij
Ja
Openbaar vervoer nabij
Ja
Sportcentrum nabij
Ja

Gebouw

Bewoonbare oppervlakte
172,00 m²
Aantal gevels
2

Terrein

Grondoppervlakte
205,00 m²
Tuin
Ja

Parkeermogelijkheden

Garage
1

Indeling

Keuken
Ja, VS volledig geïnstalleerd
Badkamer type
Douche
Zolder
Ja

Energie

EPC
116 kWh/m²/jaar
EPC unieke code
20260223-0003809016-RES-1
Dubbele beglazing
Ja
Ramen
Pvc
Elektriciteitskeuring
Ja, conform
Type verwarming
Gas cv
Verwarming
Individueel

Technieken

Elektriciteit
Ja
Gas
Ja
Water
Ja

Stedenbouw

Bestemming
Niet meegedeeld
Bouwvergunning
Niet meegedeeld
Verkavelingsvergunning
Niet meegedeeld
Voorkooprecht
Nee
Asbestinventarisattest
Ja
Dagvaarding
Nee - geen rechterlijke herstelmaatregel of bestuurlijke maatregel opgelegd
G-score
D
P-score
D
Vonnissen
Nee
Kadaster sectie
B
Kadaster nummer
0087W4P0000

Meer info over deze eigendom

Bedankt voor je bericht, we contacteren je zo spoedig mogelijk.
Er was een probleem bij het versturen van het formulier, gelieve opnieuw te proberen.
(*) Gelieve de verplichte velden in te vullen.

Downloads