Huis
€ 149.000

Leopoldstraat 5, 2627 Schelle
    • delen

Omschrijving Ref.: 7296648

Volledig te renoveren woning met 3 slpk en tuin


Plannen, foto's en virtual bezoek:
360tool.immotools.be/

Omschrijving:
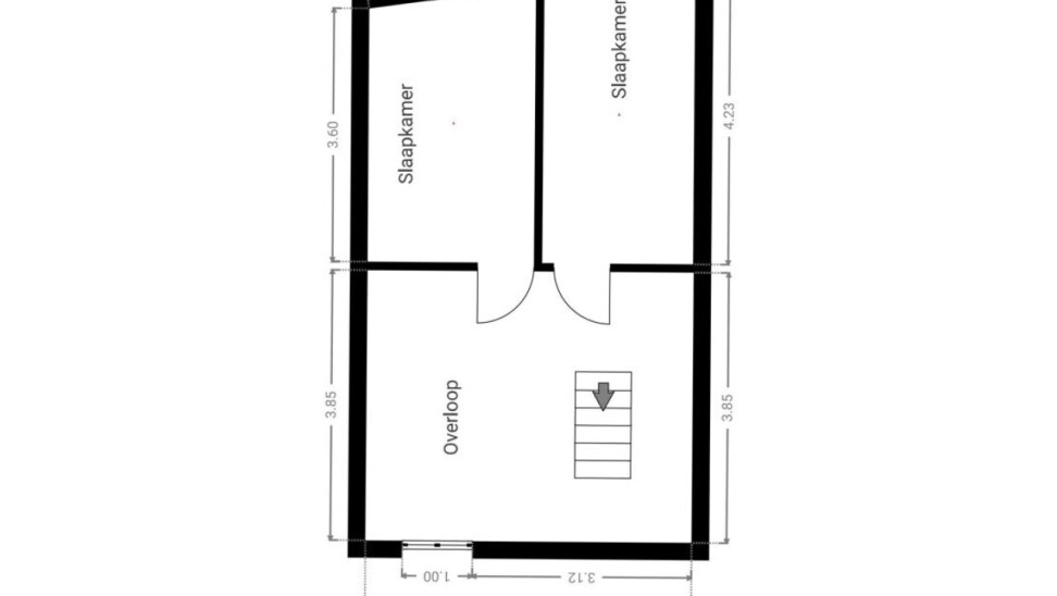
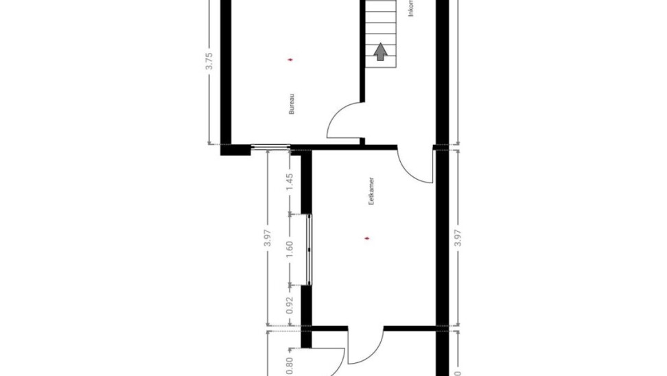
- gelijkvloers: inkomhal, woonkamer, zitkamer, keuken, badkamer, slaapkamer
- 1e verdieping: nachthal, 2 slaapkamers

Verder:
- renovatieverplichting
- electriciteit is niet conform
- terras
- tuin
- kelder
- alle noodzakelijke documenten voor de verkoop zijn beschikbaar en liggen ter inzage bij het bezoeken van de woning


Uw contact

Glenn Anné 0477 19 17 40
contact

Details van het pand

Financieel

Prijs
€ 149.000,00
Onder BTW stelsel
Nee
Beschikbaarheid
Vanaf akte
Kadastraal inkomen
€ 282,00

Ligging

Buurt
Centraal, rustig
School nabij
Ja
Winkels nabij
Ja
Openbaar vervoer nabij
Ja
Sportcentrum nabij
Ja

Gebouw

Bewoonbare oppervlakte
115,00 m²
Aantal gevels
2
Staat
Te renoveren

Terrein

Grondoppervlakte
140,00 m²
Tuin
Ja

Indeling

Keuken
Ja

Energie

EPC
1.208 kWh/m²/jaar
Elektriciteitskeuring
Ja, niet conform
Datum keuring
19/12/2025

Technieken

Elektriciteit
Ja
Water
Ja

Stedenbouw

Bestemming
Niet meegedeeld
Bouwvergunning
Niet meegedeeld
Verkavelingsvergunning
Niet meegedeeld
Voorkooprecht
Nee
Renovatieverplichting
Ja
Asbestinventarisattest
Ja
Dagvaarding
Nee - geen rechterlijke herstelmaatregel of bestuurlijke maatregel opgelegd
G-score
C
P-score
C
Vonnissen
Nee
Kadaster sectie
A
Kadaster nummer
0179SP0000

Meer info over deze eigendom

Bedankt voor je bericht, we contacteren je zo spoedig mogelijk.
Er was een probleem bij het versturen van het formulier, gelieve opnieuw te proberen.
U moet de algemene voorwaarden aanvaarden om dit bericht te kunnen verzenden
(*) Gelieve de verplichte velden in te vullen.