Huis
€ 335.000 (In optie)

Atletiekstraat 36, 2620 Hemiksem
    • delen

Omschrijving Ref.: 7214101

Interessante gesloten bebouwing - 3 slpk, tuin en garage.


Plannen, foto's en virtual bezoek:
360tool.immotools.be/

Omschrijving:
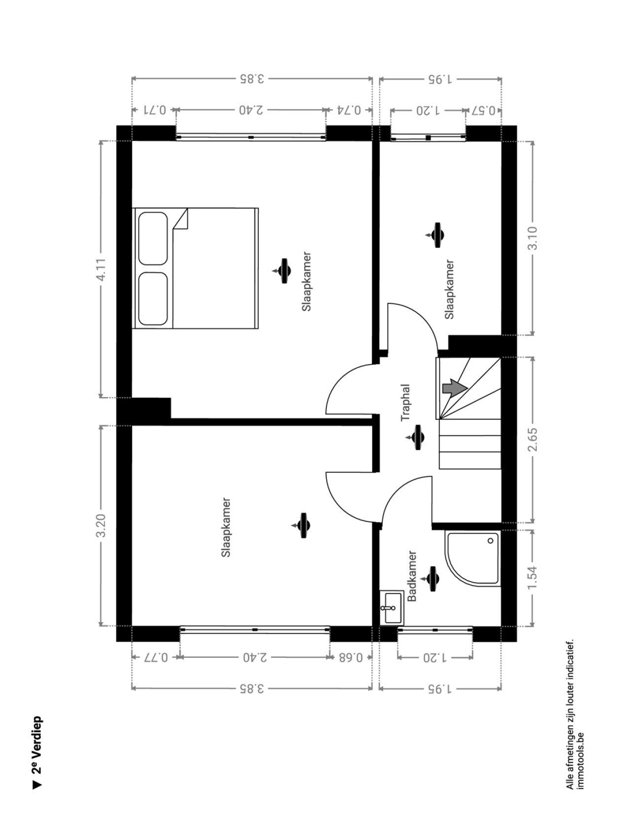
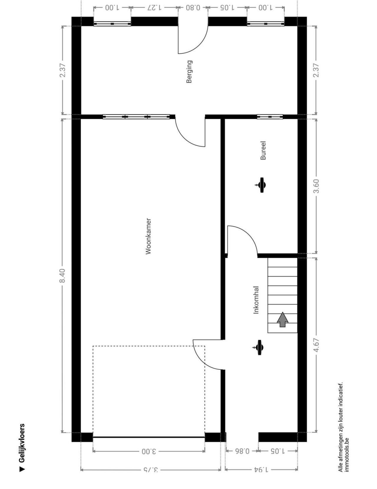
- gelijkvloers: inkomhal, bureel / ontspanningsruimte, berging
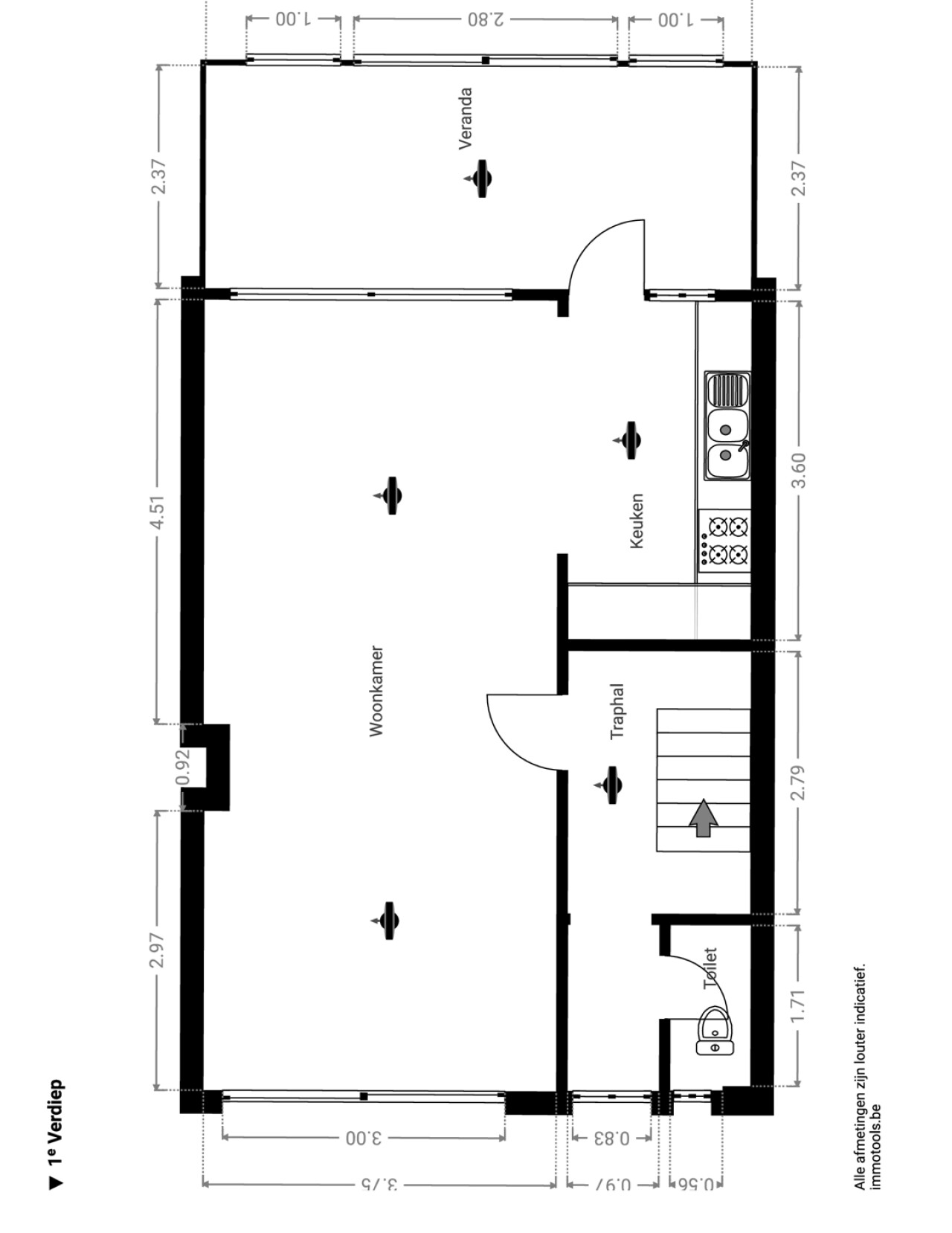
- 1e verdieping: nachthal, zitkamer, eetkamer, volledig uitgeruste keuken (gasvuur, dubbele spoelbak, koelkast, oven, microgolfoven), gastentoilet, veranda
- 2e verdieping: nachthal, 3 slaapkamers, badkamer (douche, enkele lavabo)

Verder:
- grote garage
- ruime ZW-tuin
- alu ramen dubbele beglazing
- electriciteit kan conform gemaakt worden voor 2.538,70 € (incl. BTW)
- gas CV Vaillant
- alle noodzakelijke documenten voor de verkoop zijn beschikbaar en liggen ter inzage bij het bezoeken van de woning


Uw contact

Glenn Anné 0477 19 17 40
contact

Details van het pand

Financieel

Prijs
€ 335.000,00
Onder BTW stelsel
Nee
Beschikbaarheid
Vanaf akte
Kadastraal inkomen
€ 639,00

Ligging

Buurt
Centraal, rustig
School nabij
Ja
Winkels nabij
Ja
Openbaar vervoer nabij
Ja
Sportcentrum nabij
Ja

Gebouw

Bewoonbare oppervlakte
135,00 m²
Aantal gevels
2
Bouwjaar
1968

Terrein

Grondoppervlakte
260,00 m²
Tuin
Ja

Parkeermogelijkheden

Garage
1

Indeling

Keuken
Ja, VS volledig geïnstalleerd
Bureau
Ja
Veranda
Ja
Badkamer type
Douche
Wasplaats
Ja

Comfort

Air conditioning
Ja

Energie

EPC
404 kWh/m²/jaar
Dubbele beglazing
Ja
Ramen
Aluminium
Elektriciteitskeuring
Ja, niet conform
Datum keuring
24/10/2025
Type verwarming
Gas cv
Verwarming
Individueel

Technieken

Elektriciteit
Ja
Gas
Ja
Water
Ja

Stedenbouw

Bestemming
Woongebied
Bouwvergunning
Niet meegedeeld
Verkavelingsvergunning
Niet meegedeeld
Voorkooprecht
Niet meegedeeld
Renovatieverplichting
Ja
Asbestinventarisattest
Ja
Dagvaarding
Nee - geen rechterlijke herstelmaatregel of bestuurlijke maatregel opgelegd
G-score
A
P-score
A
Vonnissen
Nee
Kadaster sectie
B
Kadaster nummer
0133Z4P0000

Meer info over deze eigendom

Bedankt voor je bericht, we contacteren je zo spoedig mogelijk.
Er was een probleem bij het versturen van het formulier, gelieve opnieuw te proberen.
U moet de algemene voorwaarden aanvaarden om dit bericht te kunnen verzenden
(*) Gelieve de verplichte velden in te vullen.